FAMILLE  GOUBIN - POULAT                                                             
PAGES PRIVÉES   
MA VIE À SIGOGNE - 05
Notre « demeure »
J’emploie à dessein l’expression « demeure ». C’était le terme usité à Sigogne pour parler de notre maison. On verrait sans doute aujourd’hui dans ce mot un mélange de respect forcé et de distance, mais mes oreilles d’enfant ne l’entendaient pas ainsi. La demeure en question, c’était chez moi, ma maison tout simplement… Et puis à Sigogne à cette époque-là, toutes les grandes maisons sont désignées ainsi.
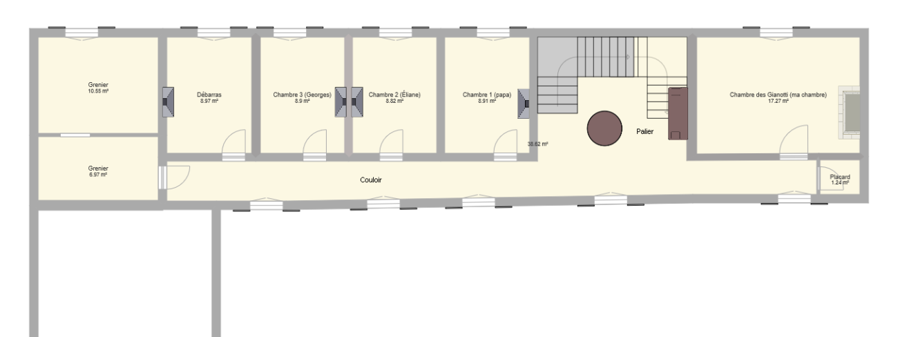
Notre demeure donc est immense, ça c’est vrai, non seulement à cause des dépendances, mais parce que dans le bâtiment principal, une douzaine de pièces (au moins) sont habitables, réparties sur trois niveaux.
Toujours grâce à cette même photo, il est possible de resituer la plupart des pièces de la maison donnant sur le clos.
J’ai dessiné de mémoire les vues en plan suivantes . Les proportions ne sont sans doute pas rigoureusement ex actes, mais l’ensemble est assez cohérent…
- rez de chaussée,
- 1er étage,
- 2ème étage.
Je l’ai déjà écrit, si la maison est un pur bonheur pendant les mois d’été, il en est tout autrement l’hiver.  La mauvaise saison est terrible à passer dans cette immense maison glaciale et humide, alors la cuisine et la petite salle à manger qui lui est contigüe, les seules pièces en dehors des bureaux à être chauffées dans la journée sont les pièces les plus fréquentées…
Une grosse cuisinière à charbon occupe le centre de la cuisine, et papa a fait percer la cloison de séparation dans sa partie haute, pour que de l’air chaud passe dans la petite salle. Les chambres, qui disposent pourtant toutes de cheminées, sont rarement chauffées.
Alors comme tout le monde à cette époque, on lutte contre le froid par les moyens du bord. C’est ainsi que pour réchauffer les lits, on utilise de grosses briques qui sont mises au four une heure environ avant d’aller au lit et qui, soigneusement emmaillotées de linges épais, sont glissées entre les draps au moment du coucher. Pas question de faire une toilette, je ne suis même pas certain que je me déshabille complètement avant d’enfiler ma chemise de nuit en tissu molletonné et de me fourrer tout grelottant sous les couvertures. Protégés par d’épaisses chaussettes que je ne me risquerais pour rien au monde à ôter, mes pieds partent alors à la recherche de la source chaude et rassurante de la brique, (brûlante parfois… un soir où l’on m’avait mis une bouillotte en caoutchouc, celle-ci s’éventra soudain, libérant sur mes pieds son eau bouillante)…
Bien calé dans mon matelas de plume qui a gardé de la nuit précédente la forme en creux de mon corps, recouvert d’une couverture, d’un couvre-pied et d’un édredon, l’ensemble remonté jusqu’aux yeux, la sensation glaciale du premier contact des draps s’estompe vite, et je m’endors, heureux !
C’est la grande chambre du premier, (qu’on appelle « la chambre des Gianotti » du nom des précédents propriétaires de la maison qui l’ont laissée meublée de meubles Second Empire quand ils ont déménagé), qui m’a été dévolue. Elle se situe au-dessus des bureaux de l’étude.  J’en garde un souvenir émerveillé… Tout y est démesuré… La cheminée monumentale, un grand piano droit que je n’ai jamais connu qu’épouvantablement désaccordé, un lit à baldaquin (avec ciel de lit !)  si haut que je dois sauter pour y accéder. Une armoire à glace monumentale et une petite table de toilette complètent l’ameublement…  Dans cette chambre, mon jeu favori est de courir depuis la porte, de sauter sur le lit, puis sur le tablier de la cheminée puis sur le piano avant de descendre sur le plancher près de la porte et de recommencer le circuit… Je me souviens avoir passé des moments délicieux à jouer à ce jeu avec ma cousine Geneviève Poulat l’année où elle était venue passer
Sigogne 06 Sigogne 04
11
12